LUMINOSO ATTICO CON TERRAZZO DI PROPRIETA' E PISCINA PRIVATA

In vendita
Milano (Chiesa Rossa/ Cermenate/ Ripamonti) - via Giuseppe Ripamonti, 227
990.000 €
Attico
Categoria
200
m2
3
Bagni
1
Box
Descrizione
Se sogni di vivere in un attico esclusivo con piscina privata, questa è l'occasione che aspettavi!

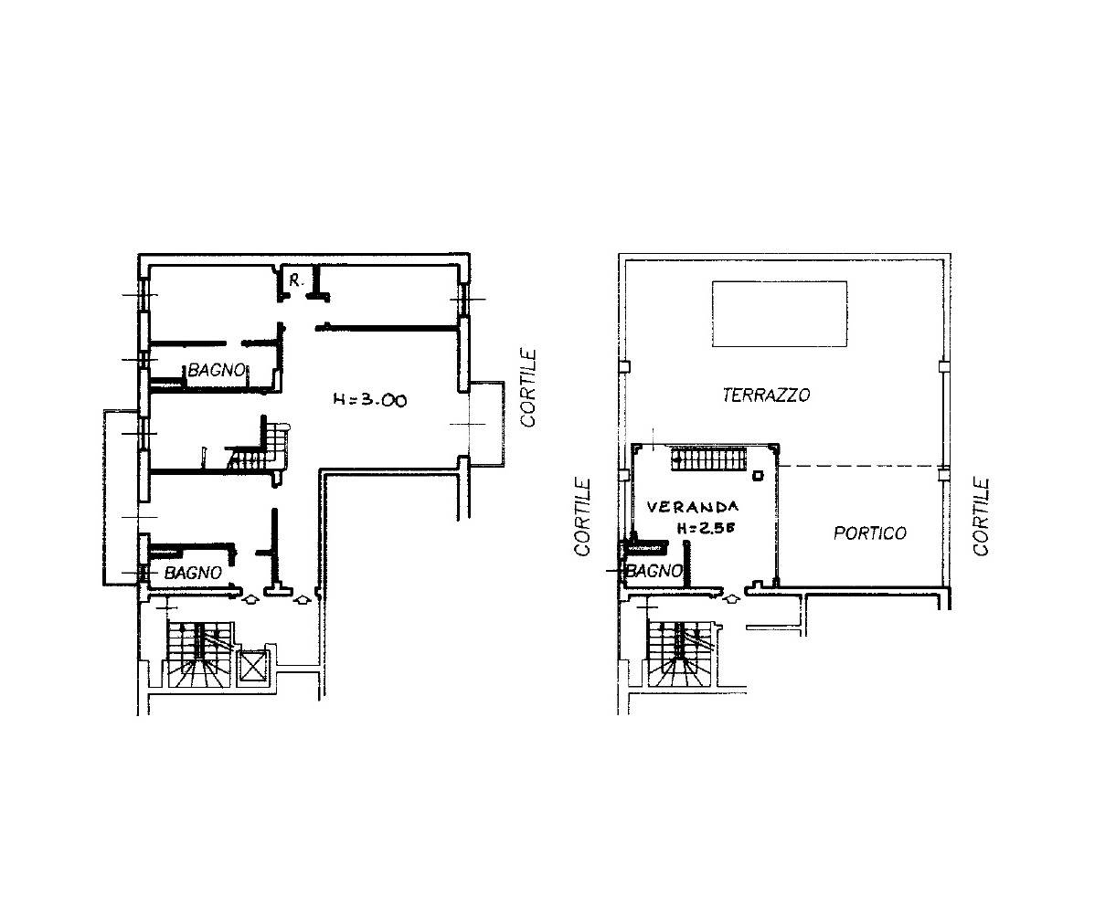
Proponiamo in vendita luminosa unità immobiliare di circa 200 metri quadrati che si sviluppano su due livelli, offrendo un'esperienza abitativa senza pari.
Ingresso su un ampio soggiorno, una camera matrimoniale con bagno privato, due balconi, un funzionale ripostiglio, due camere da letto e un secondo bagno finestrato.
Grazie a una scala interna è possibile accedere al secondo livello, qui troviamo una spaziosa cucina, bagno finestrato e terrazzo di proprietà, il quale offre uno spazio all'aperto perfetto per rilassarsi, cenare all'aria aperta o godersi il sole, diventando così il luogo ideale per momenti di relax, svago e socializzazione con amici e familiari
Dotato di videocitofono, sistema di allarme, zanzariere, infissi in doppio vetro legno e aria condizionata .
Completa la proprietà una cantina di pertinenza e un box auto.

Stabile signorile con giardino condominiale ben curato e portineria intera giornata; ubicato in una zona residenziale ricca di aree verdi, scuole, supermercati, negozi e servizi.
In forte crescita grazie alla vicinanza con la Fondazione Prada.
Comodamente collegato con l'imbocco delle tangenziali e servito dai mezzi di trasposto, quali la linea 34 che collega Quartiere Fatima con Via Toffetti passando per la linea MM3 di Brenta e il tram linea 24 che collega Vigentino con il Duomo, comodissimo per raggiungere il centro in pochi minuti passando per la linea MM3 di Crocetta e Missori.

Contattaci per ulteriori informazioni e per organizzare una visita!

Re Casa
Via Giuseppe Ripamonti n° 227, 20141 Milano ( MI )
Tel. 0249531213 - WhatsApp 3791749897
Mail: info@milanorecasa.it
Caratteristiche principali
Codice:
A4
Città:
Milano (Chiesa Rossa/ Cermenate/ Ripamonti)
Categoria:
Attico
Spese condominiali:
5.640 € / anno
Locali:
5
Bagni:
3
Mq:
200
Box:
1
Mq Box:
25
Balconi:
2
Terrazzi:
1
Piano:
6
Anno:
1970
Classe energetica:
Non classificabile
Stato Immobile:
Buono
Grado:
Signorile
Orientamento:
Est Nord Ovest
Lati Liberi:
3
Giardino:
Cortile
Tipo Soggiorno:
Soggiorno
Tipo Cucina:
Abitabile
Riscaldamento:
Centralizzato
Tipo Riscaldam.:
Caldaia
Tipo Impianto:
Radiatori
Fonte Energetica:
Metano
Raffrescamento:
Split
Infissi:
Legno Doppio Vetro
Accessori
Antifurto
Aria Condizionata
Ascensore
Cancello Elettrico
Doppi Vetri
Fibra Ottica
Parco Condominiale
Piscina
Porta Blindata
Portineria/Custode
Ripostiglio
Vasca Idromassaggio
Veranda
Video Citofono
Zanzariere
Mappa
Cookie preference