LUMINOSO APPARTAMENTO CON GIARDINO PRIVATO

In vendita
Milano (Chiesa Rossa/ Cermenate/ Ripamonti) - via Virgilio Ferrari, 25
499.000 €
Appartamento
Categoria
95
m2
2
Bagni
Descrizione
Re Casa propone in esclusiva, splendido appartamento situato in un elegante stabile di recente costruzione, con ingresso indipendente e giardino privato.

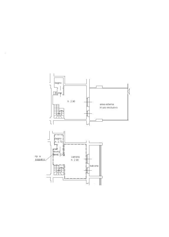
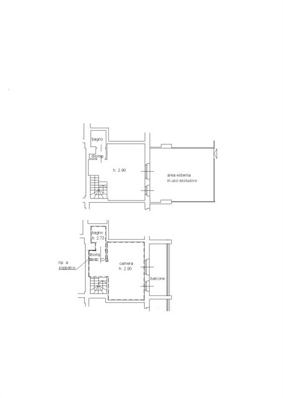
Entrando, vi accoglierà un luminoso soggiorno con cucina a vista, ideale per trascorrere piacevoli momenti in compagnia. La zona notte al piano superiore è composta da una camera da letto con cabina armadio e un terrazzo dove potrete rilassarvi e godere del verde circostante.

I doppi servizi garantiscono comfort e praticità per voi e i vostri ospiti.

Possibilità di trasformare l'unità abitativa in tre locali .

L'immobile è comodamente collegato con le tangenziali e con i centri commerciali Fiordaliso e Milanofiori, ben servito dai mezzi di trasporto, come la linea 34 che collega Quartiere Fatima con Via Toffetti passando per la linea MM3 di Brenta e il tram linea 24, che collega Vigentino con il Duomo.
Inoltre, è possibile raggiungere il centro in pochi minuti passando per la linea MM3 di Crocetta e Missori.

Non lasciatevi scappare l'opportunità di vivere in un ambiente moderno, tranquillo e confortevole, contattateci per maggiori informazioni e per organizzare una visita.

Re Casa
Via Giuseppe Ripamonti n° 227, 20141 Milano ( MI )
Tel. 0249531213 - WhatsApp 3791749897
Mail: info@milanorecasa.it
Caratteristiche principali
Codice:
B9
Città:
Milano (Chiesa Rossa/ Cermenate/ Ripamonti)
Categoria:
Appartamento
Spese condominiali:
4.200 € / anno
Locali:
3
Bagni:
2
Mq:
95
Terrazzi:
1
Piano:
Terra
Anno:
2017
Classe energetica:
A1
44,16
Stato Immobile:
Nuovo
Grado:
Signorile
Giardino:
Privato
Arredi:
Semi Arredato
Tipo Soggiorno:
Soggiorno
Tipo Cucina:
A Vista
Riscaldamento:
Autonomo
Tipo Riscaldam.:
Caldaia
Tipo Impianto:
Pavimento
Raffrescamento:
Split
Infissi:
PVC Doppio Vetro
Serramenti:
Nuovo
Accessori
Aria Condizionata
Cancello Elettrico
Doppi Vetri
Fibra Ottica
Video Citofono
Mappa
Planimetrie
Cookie preference