LUMINOSO, MODERNO ED ELEGANTE TRILOCALE CON FINITURE DI ALTA QUALITA'

In vendita
Milano (Chiesa Rossa/ Cermenate/ Ripamonti) - via Noto, 10
595.000 €
Appartamento
Categoria
110
m2
2
Camere
2
Bagni
2
Posti auto
Descrizione
Sei pronto a scoprire la tua prossima casa? Ti presentiamo un moderno e luminoso trilocale di circa 110 metri quadrati, al quinto piano di uno stabile di recente costruzione dotato di ascensore, rendendo l'immobile facilmente accessibile. Questo appartamento è la scelta perfetta per chi cerca il comfort.
La posizione al quinto piano assicura tranquillità e privacy, oltre a una luminosità eccezionale per tutto l'arco della giornata.

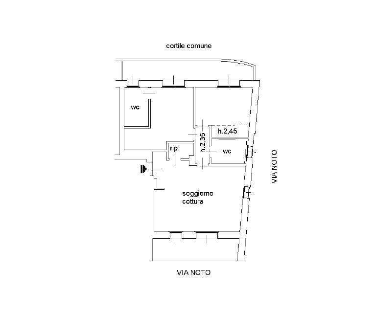
Ingresso su un'ampia e luminosa zona giorno che integra un elegante soggiorno e una cucina a vista. Questo spazio aperto non solo è moderno e funzionale, ma è anche il luogo ideale per trascorrere momenti in compagnia o rilassarsi dopo una lunga giornata, dal soggiorno è possibile accedere a un primo terrazzo vivibile.
La zona notte è composta da due camere da letto, entrambe con accesso a un secondo terrazzo. La camera principale dispone di un bagno privato con doccia, mentre il secondo bagno, anch'esso con doccia, è a disposizione degli ospiti.
Un comodo ripostiglio completa la disposizione interna, garantendo spazio aggiuntivo per l'organizzazione della casa.

Le finiture interne sono di alta qualità; immobile dotato di infissi che assicurano un ottimo isolamento termoacustico, tapparelle elettriche, zanzariere, porta blindata con sistema di sicurezza, videocitofono, aria condizionata e riscaldamento a pavimento. Prestazione classe energetica: A .
Completa la proprietà una cantina di pertinenza e due posti auto .

Immobile ubicato in una zona residenziale ricca di aree verdi, scuole, supermercati, negozi e servizi. In forte crescita grazie alla vicinanza con la Fondazione Prada . Comodamente collegato con l'imbocco delle tangenziali e servito dai mezzi di trasposto, quali la linea 34 che collega Quartiere Fatima con Via Toffetti passando per la linea MM3 di Brenta e il tram linea 24 che collega Vigentino con il Duomo, comodissimo per raggiungere il centro in pochi minuti passando per la linea MM3 di Crocetta e Missori.

Re Casa
Via Giuseppe Ripamonti n° 227, 20141 Milano ( MI )
Tel. 0249531213 - WhatsApp 3791749897
Mail: info@milanorecasa.it
Caratteristiche principali
Codice:
T8
Città:
Milano (Chiesa Rossa/ Cermenate/ Ripamonti)
Categoria:
Appartamento
Spese condominiali:
3.000 € / anno
Locali:
3
Camere:
2
Bagni:
2
Mq:
110
Posti auto:
2
Balconi:
1
Terrazzi:
1
Piano:
5
Anno:
2016
Classe energetica:
A
1701 kWh/m²a
Stato Immobile:
Nuovo
Grado:
Signorile
Orientamento:
Est Nord Ovest
Arredi:
Arredato a Nuovo
Tipo Soggiorno:
Soggiorno
Tipo Cucina:
A Vista
Riscaldamento:
Tele Riscaldamento
Tipo Riscaldam.:
Tele Riscaldamento
Tipo Impianto:
Pavimento
Raffrescamento:
Split
Infissi:
PVC Doppio Vetro
Serramenti:
Ottimo
Accesso Disabili:
Nessuna Barriera
Accesso interno disabili:
Pieno accesso
Accessori
Aria Condizionata
Ascensore
Cancello Elettrico
Doppi Vetri
Fibra Ottica
Porta Blindata
Portineria/Custode
Ripostiglio
Tapparelle Elettriche
Video Citofono
Zanzariere
Mappa
Cookie preference